ФУНКЦИОНАЛЬНАЯ СХЕМА БУ-011
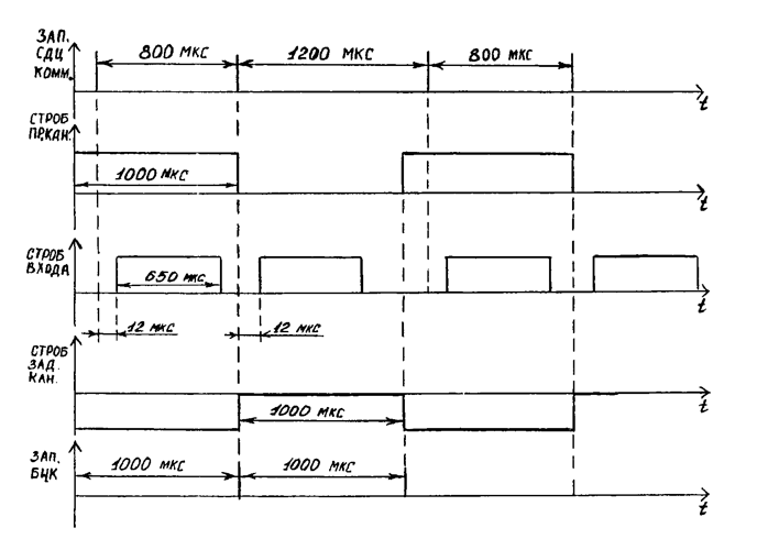
Блок усреднения выполняет усреднение периодов повторения Ти1=800 мкс, Ти2=1200 мкс до Ти ср=1000 мкс. Функциональная схема БУ-011 приведена на рисунке 6.4. Входные видеосигналы от движущихся целей, местных предметов поступают на повторитель катодный ПК-1 блока стробирующих каскадов БСК-1. Входные сигналы ПК-1 поступают в смеситель СМ1 только в интервале времени действия СТРОБ ВХОДА на 650 мкс на полупроводниковом вентиле ПВ1. В другие интервалы времени выход ПК1 зашунтирован ПВ1. Во времени СТРОБ ВХОДА смещен относительно запускающих импульсов передатчика (ЗАПУСК СДЦ КОММ) на 12 мкс, в течение которых на второй вход СМ1 поступают контрольные сигналы из БАК. Далее видеосигналы с СМ1 через ПК2 поступают в смеситель СМ возбудителя №2. Возбудитель обеспечивает преобразование видеосигналов в радиосигналы, которые используются для возбуждения ультразвуковой линии задержки УЛЗ на 200 мкс. На второй вход СМ поступают из ГПИ импульсы "ЗАПУСК БЧК" для задержи на 200 мкс в БУ-011. Линии задержки ЛЗ1, ЛЗ2 на 0,2 мкс каждая обеспечивают точную регулировку времени задержки импульсов ЗАП БЧК. Принцип работы возбудителя поясняется временными диаграммами на рисунке 6.5. Кварцевый генератор вырабатывает гармонические колебания с частотой 15 МГц, которое в модуляторе подвергаются амплитудной модуляции сигналами со смесителя. Амплитудно-модулированные колебания усиливаются в предоконечном и оконечном усилителях и поступают на возбуждение в УЛЗ на 200 мкс. Кроме того, этот же сигнал через усилитель У после амплитудного детектирования в АД подается на СМ2 БСК2. Временные диаграммы стробов в БСК приведены на рисунке 6.6.



Сигнал прямого канала стробируется сигналом "Строб прямого канала" на 1000 мкс на входе полупроводникового вентиля ПВ2. УЛЗ на 200 мкс помещается в термостат, в котором с помощью терморегулятора поддерживается неизменный температурный режим.
Линия задержки выполнена из магниевого сплава, внешняя поверхность – рифленая, что позволяет эффективно подавлять поперечные волновые колебания между стенками УЛЗ.
Задержанные и ослабленные в УЛЗ радиосигналы восстанавливаются по амплитуде в усилителе задержанного канала УЗК-2. Он представляет собой многокаскадный усилитель, в котором для получения заданной полосы пропускания 4 МГц используются:
- расстроенная тройка каскадов – усилители У1, У2, У3;
- расстроенная двойка каскадов – усилители У4, У5.
Выходной усилитель настроен на частоту 15 МГц, полоса его пропускания составляет 4 Мгц, что достигается уменьшением добротности колебательного контура. Заданный коэффициент усиления УЗК-2 достигается путем выбора напряжения смещения (Uсм) в У1, У3 и регулировки коэффициента усиления в У2. Двухтактный детектор выполняет амплитудное детектирование задержанных и усиленных видеосигналов, которые через катодный повторитель КП УЗК-2, ПК-З, СМ2, ПК4 БСК2 поступают в БЧК-011, а задержанные импульсы "Запуск БЧК" – через видеосмеситель ВУ в БКИ.
Для выделения задержанных сигналов только из периода повторения Ти2=1200 мкс выходные сигналы с ПКЗ стробируются полупроводниковым вентилем ПВЗ сигналом "Строб задержанного канала". Видеосигналы с усредненным периодом повторения Ти ср = 1000 мкс с выхода БУ-011 поступают в блок БЧК-011.